
2 Beds
1 Bath
862 SqFt
2 Beds
1 Bath
862 SqFt
Key Details
Property Type Single Family Home, Condo
Sub Type Condo
Listing Status Active
Purchase Type For Sale
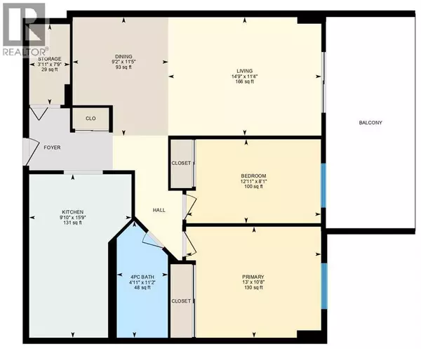
Square Footage 862 sqft
Price per Sqft $265
Subdivision Dalhousie
MLS® Listing ID A2275553
Bedrooms 2
Condo Fees $595/mo
Year Built 1981
Property Sub-Type Condo
Source Calgary Real Estate Board
Property Description
Location
State AB
Rooms
Kitchen 0.0
Extra Room 1 Main level 14.75 Ft x 11.33 Ft Living room
Extra Room 2 Main level 12.92 Ft x 8.08 Ft Bedroom
Extra Room 3 Main level 11.42 Ft x 9.17 Ft Dining room
Extra Room 4 Main level 11.17 Ft x 4.92 Ft 4pc Bathroom
Extra Room 5 Main level 15.75 Ft x 9.83 Ft Other
Extra Room 6 Main level 20.42 Ft x 7.83 Ft Other
Interior
Heating Baseboard heaters
Cooling None
Flooring Carpeted, Linoleum
Exterior
Parking Features Yes
Community Features Pets Allowed With Restrictions
View Y/N No
Total Parking Spaces 1
Private Pool No
Building
Story 12
Others
Ownership Condominium/Strata

"My job is to find and attract mastery-based agents to the office, protect the culture, and make sure everyone is happy! "






